

Vendido por MUNDO DAS FECHADURAS | Entregue por MadeiraMadeira
Vendido por
MUNDO DAS FECHADURASProdutos disponíveis
Ainda não há vendas suficientes para avaliar o atendimento.
Barra Antipânico 1200 com 2 Pontos de Fixação Touch Inox Escovado Soprano
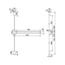
A barra antipânico é um produto de segurança essencial e obrigatório para saídas de emergência de shoppings, cinemas, edifícios comerciais, empresas, fábricas.
Segue normas internacionais, mais uma garantia de segurança e qualidade. Pode ser usada com a fechadura antipânico para abertura da porta pelo lado de fora.
Marca: Soprano
Acabamento: Escovado
Material: Aço inox
Sistema de travamento de dois pontos(Superior e inferior)
Acompanha manual e kit de instalação
Produto segue a norma européia BS-EN-1125
Permite a instalação de fechadura antipânico 5122 para acesso de fora para dentro. Produto não incluso - uso opcional.
Aplicação:
- Portas de emergência simples (1 folha) com largura máxima de porta de 1000 mm;
- Portas de emergência duplas (2 folhas) com largura máxima de porta de 1000 mm (cada folha);
- Para portas duplas, utilizar uma barra modelo 1500 e uma barra modelo 1200.